
Svaiga gaisa atloks, kas ir ērti uzstādāms
5 regulējami vēja ātrumi, lai apmierinātu dažādas vajadzības.

| Specifikācijas | Vienības | MIDG- 05X1EV2AD |
MIDG- 07X1EV2AD |
MIDG- 09X1EV2AD |
MIDG- 12X1EV2AD |
MIDG- 16X1EV2AD |
MIDG- 18X1EV2AD |
MIDG- 24X1EV2AD |
MIDG- 28X1EV2AD |
MIDG- 30X1EV2AD |
MIDG- 38X1EV2AD |
MIDG- 48X1EV2AD |
MIDG- 54X1EV2AD |
||
| Jauda | |||||||||||||||
| Dzesēšana | kW | 1.50 | 2.20 | 2.80 | 3.60 | 4.50 | 5,60 | 7,10 | 8,00 | 9,00 | 11,20 | 14,00 | 16.00 | ||
| Apkure | kW | 1.70 | 2.50 | 3.20 | 4.00 | 5.00 | 6,30 | 8,00 | 9,00 | 10,00 | 13.00 | 16.30 | 18.00 | ||
| Elektriskie parametri | |||||||||||||||
| Barošanas avots | Ph/V/Hz | 1/220-240/50(60) | 1/220-240/50(60) | ||||||||||||
| Ventilācija | |||||||||||||||
| Gaisa plūsma (H/M/L) | m3/h | 515/440/390 | 545/470/390 | 545/470/390 | 570/495/420 | 700/625/550 | 915/765/640 | 1275/1050/875 | 1275/1050/875 | 1450/1200/1000 | 2000/1700/1400 | 2150/1700/1400 | 2350/1950/1600 | ||
| Skaņas spiediens (H/M/L) |
dB(A) | 29/27/25 | 30/28/25 | 30/28/25 | 31/29/27 | 32/30/28 | 33/31/29 | 34/31/29 | 35/33/30 | 36/33/30 | 38/35/32 | 40/36/32 | 42/38/34 | ||
| Skaņas jauda (H/M/L) |
dB(A) | 41/39/37 | 42/40/37 | 42/40/37 | 43/41/39 | 44/42/40 | 45/43/41 | 46/43/41 | 47/45/42 | 48/45/42 | 50/47/44 | 52/48/44 | 54/50/46 | ||
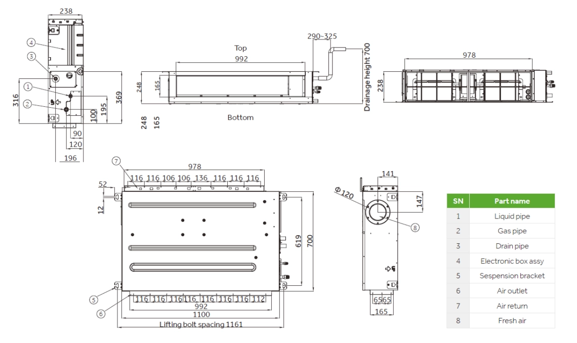
| Uzstādīšana - izmēri | |||||||||||||||
| Tīrie izmēri (WxDxH) |
mm | 700x700x248 | 1100x700x248 | 1100x700x248 | 1500x700x248 | ||||||||||
| Iepakojuma vienības izmēri (WxDxH) |
mm | 901x853x305 | 1301x853x305 | 1301x853x305 | 1701x853x305 | ||||||||||
| Neto svars / bruto svars |
Kg | 25.0/30.7 | 25.0/30.7 | 25.0/30.7 | 25.0/30.7 | 25.0/30.7 | 34.0/40.5 | 34.0/40.5 | 34.0/40.5 | 36.0/42.5 | 44.2/53.5 | 47.2/56.5 | 47.2/56.5 | ||
| Ø Šķidruma puse aukstumnesēja caurule |
mm (collas) |
6.35 (1/4) | 6.35 (1/4) | 6.35 (1/4) | 6.35 (1/4) | 6.35 (1/4) | 6,35 (1/4) |
9.52 (3/8) | 9,52 (3/8) | 9,52 (3/8) | 9,52 (3/8) | 9,52 (3/8) | 9.52 (3/8) | ||
| Ø Gāzes puse aukstumnesēja caurule |
mm (collas) |
9.52 (3/8) | 9.52 (3/8) | 9.52 (3/8) | 12.70 (1/2) | 12.70 (1/2) | 12,70 (1/2) | 15,88 (5/8) | 15,88 (5/8) | 15,88 (5/8) | 15,88 (5/8) | 15,88 (5/8) | 15,88 (5/8) | ||
| Statiskais spiediens (standarta/max.) |
Pa | 20/200 | 20/200 | 20/200 | 20/200 | 20/200 | 20/200 | 20/200 | 20/200 | 20/180 | 20/180 | 20/180 | 20/180 | ||
MIDG-38X1EV2AD(H) MIDG-48X1EV2AD(H) MIDG-54X1EV2AD(H) MIDG-38X1EV2AD MIDG-48X1EV2AD MIDG-54X1EV2AD MIDG-54X1EV2AD

MIDG-05X1EV2AD(H) MIDG-07X1EV2AD(H) MIDG-09X1EV2AD(H) MIDG-12X1EV2AD(H) MIDG-16X1EV2AD(H) MIDG-05X1EV2AD MIDG-07X1EV2AD MIDG-09X1EV2AD MIDG-12X1EV2AD MIDG-16X1EV2AD MIDG-16X1EV2AD

MIDG-18X1EV2AD(H) MIDG-24X1EV2AD(H) MIDG-28X1EV2AD(H) MIDG-30X1EV2AD(H)

MIDT-72X1EV2AD MIDT-96X1EV2AD
